BEST IN CLASS WORKSPACE IN BRAND
a new build
developed to the
highest standards
The Cat A specification will include:
- Exposed services
with new LED lighting
- New VRF air conditioning

- Lifts to all floors
- On site showers
- Car parking 1:1000 sq ft

- Secure cycle storage

- New full access raised floors
- Anticipated EPC rating B
- Private roof terraces to
each 4th floor suite
accommodation
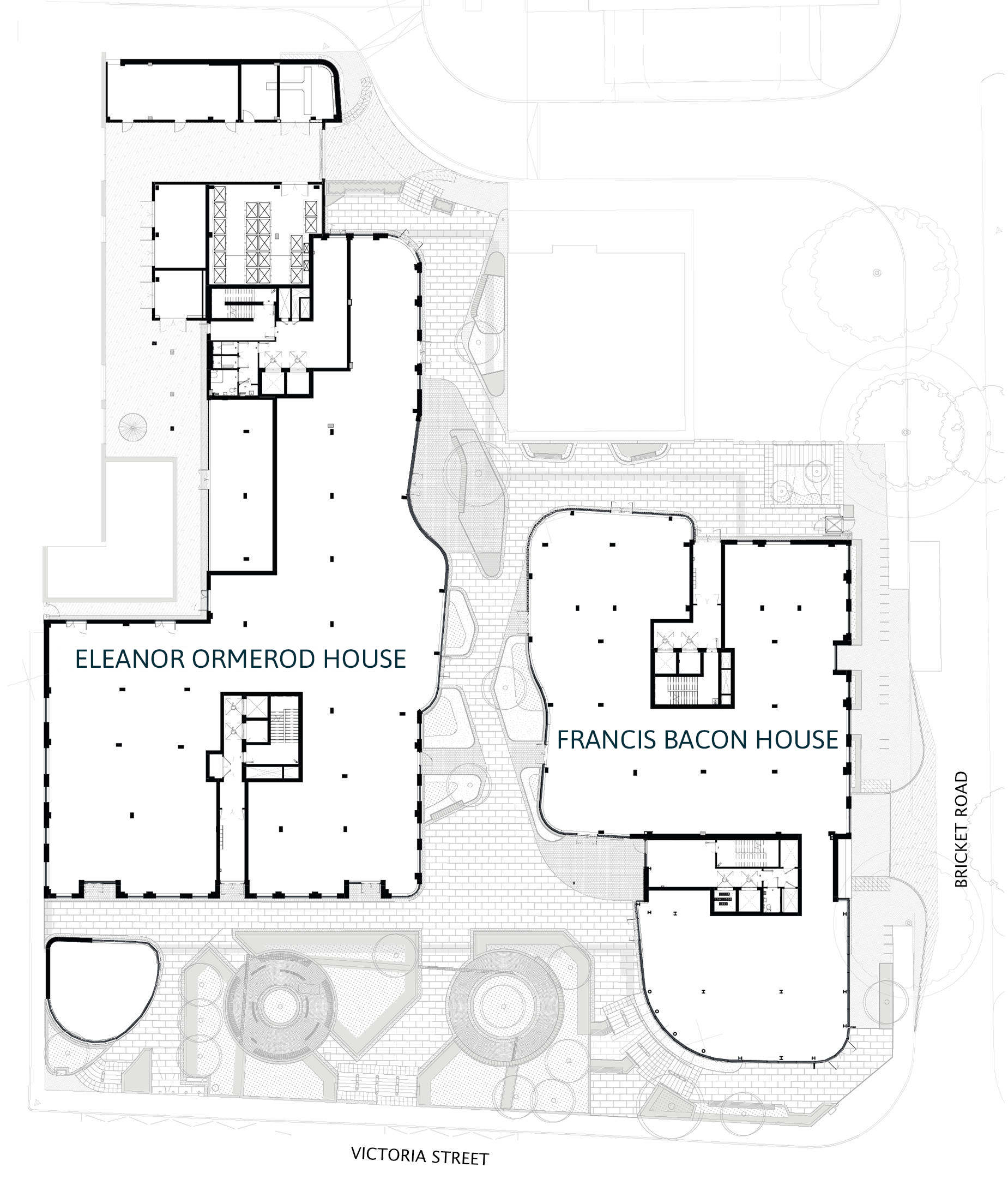
eleanor ormerod house
ground floor
| Floor | Area (sq ft) | Area (sq m) |
| Ground | 12,640 | 1,174.30 |
| First | 4,165 | 387 |
| Second | 4,165 | 387 |
| Third | 4,171 | 387.50 |
| Fourth plus private balcony |
3,081 | 286.30 |
Click map to download PDF
accommodation
francis bacon house
ground floor
| Floor | Area (sq ft) | Area (sq m) |
| Ground | 10,722 | 996.1 |
| First | 3,303 | 306.9 |
| Second | 3,303 | 306.9 |
| Third | 3,303 | 306.9 |
| Fourth | 2,389 | 221.9 |
| Bricket Rd ground floor suite 1 |
1,926 | 178.9 |
| Bricket Rd ground floor suite 2 |
1,599 | 148.5 |
Click map to download PDF
View eleanor ormerod house
a cathedral
city steeped
in history
The property is located in the commercial district of St Albans, just a short walk from some of the city's best retail and leisure facilities. Its prime location provides easy access to a range of shops and many excellent restaurants, making it easy to pick up a treat or meet up with friends for dinner.
The city's parks and beautiful historic grounds provide opportunities for a wide range of leisure activities and are where the city hosts many special events.
With so much going for it, it's no wonder that St Albans is a highly desirable place to work and live.
explore a
thriving
social scene
Eat global street food on market days, share a pint of local ale in a cosy gastro pub, or experience fine dining in one of the city's best restaurants. Food and drink is serious business in St Albans.
The city has a thriving café culture and there are meals for every taste and budget. Dine in style, grab a family-friendly bite, and experience flavours from around the world as well as locally sourced ingredients.
find your
perfect
work/life
balance
St Albans is an excellent place to perfect your work/life balance. Work out or go for a dip at one of the nearby leisure centres, swimming pools and gyms, or tee off at the world class golf course at the Centurion Club. For outdoor enthusiasts, the area also has wonderful walks and bike rides in the stunning local countryside.
St Albans is an excellent place to perfect your work/life balance. Work out or go for a dip at one of the nearby leisure centres, swimming pools and gyms, or tee off at the world class golf course at the Centurion Club. For outdoor enthusiasts, the area also has wonderful walks and bike rides in the stunning local countryside.
in good
company
just some of the big brand names that have
offices in the St Albans area
travel
WITH FAST CONNECTIONS TO THE CENTRE OF LONDON
AND THE SURROUNDING AREAS.
The property is located just a few minutes walk from St Albans station with it's fast connections by Thames link rail, you can be at London St Pancras International in 18 minutes.
Major motorways are a short drive away with the M25 (9 minutes), M1 (12 minutes). Heathrow & Luton Airports are with in 30 minutes.
contact
TERMS
Upon application
VIEWING
Strictly by appointment
through the agents.
GEORGIA STRAZZA
T: 01727 739373
Mark Bunting
T: 01727 739373
DOWNLOADS
Brochure
Space plans
PLANS
Eleanor Ormerod Ground Floor
Eleanor Ormerod 1st Floor
Eleanor Ormerod 2nd Floor
Eleanor Ormerod 3rd Floor
Eleanor Ormerod 4th Floor
Francis Bacon Ground Floor
Francis Bacon Lower Ground Floor
Francis Bacon 1st Floor
Francis Bacon 2nd Floor
Francis Bacon 3rd Floor
Francis Bacon 4th Floor
DISCLAIMER:
The Agents for themselves and for the vendors/lessors of this property, whose agents they are, give
notice
that: (1) These particulars are set out as a general guideline only for the guidance of prospective
purchasers/lessees
and do not constitute the whole, nor any part, of an offer or contract. (2) No person employed by The Agents has any
authority to enter into any contract, nor make or give any warranty or representation whatsoever in relation to this
property. The terms quoted and all subsequent negotiations are subject to contract. (3) All descriptions,
dimensions,
references to condition, necessary permissions for use and occupation, and any other details, are given in good
faith
and are believed to be correct at the time of compilation, but an intending purchasers/lessees should not rely on
them
as statements or representations of fact and must satisfy themselves as to their accuracy. (4) Any comment on
council
tax/rateable value/rates payable, and permitted planning use, is given in good faith from information informally
supplied to us. Intending purchasers must seek confirmation direct from the relevant Local Authority. (5) All plant,
machinery, equipment, services and fixtures & fittings referred to were present at the date of first inspection, but
have not been tested and The Agents give no warranty or representation as to their condition, operation or fitness
for
the intended purpose. (6) The Agents do not hold themselves responsible, in negligence or otherwise, for any loss
arising from the use of those particulars, nor for any expense incurred in viewing the premises or for abortive
journeys. (7) All prices/rents are exclusive of VAT (unless otherwise stated) and interested par-ties should take
independent advice as to the VAT and general taxation implications of proceeding. (8) For all sales it is a legal
requirement that we make ID checks on the purchaser and verify the source of funds.